
地址:河南省周口市川匯區銀珠大道周口一高南100米
手機:13033969998
熱線:0394-8595585
信箱:455329348@qq.com
網址:m.nuoshua.cn
散裝水泥罐是一種常見的水泥攪拌站的配套儲存設備,常常用作糧食、煤粉、水泥等散裝物料的儲存裝置。而螺旋輸送及確是散裝水泥罐下料中廠常常使用的傳料設備。
螺旋輸送機在輸送形式上分為有軸螺旋輸送機和無軸螺旋輸送機兩種,廣泛應用于建材、化工、電力、冶金、煤礦炭、糧食等行業,適用于水平或傾斜輸送粉狀、粒狀和小塊狀物料,特別是在配合散裝水泥罐使用中,螺線輸送機的作用得到了極大的體現。那么如何選購合適的螺旋輸送機呢?螺旋輸送機在安裝時又有哪些注意事項呢?
在選購螺旋輸送機時第一要考慮自己需要輸送的原料是什么?如果物料具有腐蝕性或者粘稠性,可以選擇無軸螺旋輸送機,但是對于粘稠性物料一般不選用管式螺旋輸送機,因為很容易堵住料口。
第二、根據輸送長度確定螺旋輸送機的尺寸,過長或者過短都不好。
第三、根據物料的輸送量決定螺旋輸送機的料口的口徑。
第四、根據輸送的角度計算出合適的尺寸。一般LS型的螺旋輸送機為水平輸送,角度不能太大,一般在十五度以內, 最為佳。如果角度比較大,我建議選擇管式,管式螺旋輸送機能垂直輸送,傾斜輸送沒問題。
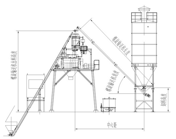
在安裝方面螺旋輸送機常規出廠長度為6M、9M、12M三種,角度一般在30~60度為佳。通過簡單的數學計算方可得出散裝水泥罐卸料高度,如下圖:

周口錦榮倉儲設備有限公司,專業生產散裝水泥罐、水泥倉設備的廠家。推薦閱讀:
《水泥罐日常保養》